Öffentliche Ausschreibung einer Wohnungen durch die Gemeinde Vörstetten

voraussichtlich zum 01.06.2026:
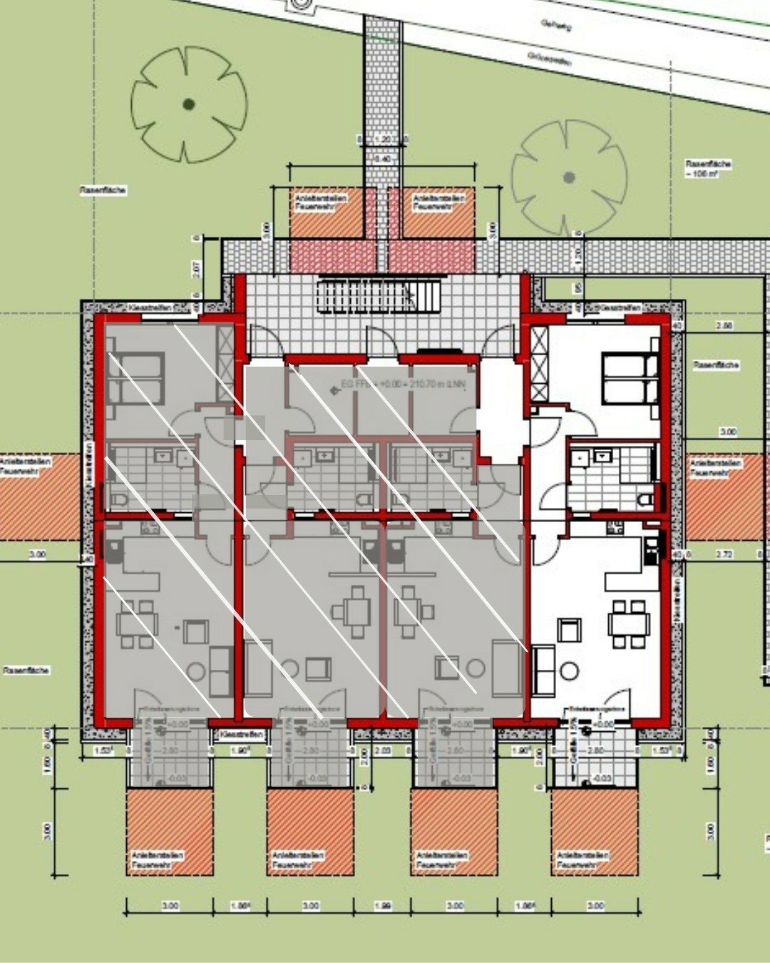
- eine Zweizimmerwohnung, EG, Größe 59 m², Miethöhe 545,75 € zzgl. Nebenkosten
Voraussetzung für die Vergabe durch die Gemeinde Vörstetten ist u.a. die Einhaltung der maßgeblichen Einkommens- u. Vermögensgrenzen, kein vorhandenes Wohneigentum, sozialbezogene und ortsbezogene Kriterien.
In jedem Fall ist das Vorliegen eines Wohnberechtigungsscheines erforderlich.
Nähere Informationen zu den Rahmenbedingungen finden Sie in den Vergaberichtlinien für Gemeindewohnungen der Gemeinde Vörstetten.
Sollten Sie Interesse an einer der Wohnungen haben und die Voraussetzungen erfüllen, können Sie sich schriftlich mit dem Bewerbungsformular und den vollständigen erforderlichen Anhängen bis zum 10.04.2026 bei der Gemeinde Vörstetten, Freiburger Straße 2, 79279 Vörstetten bewerben.
Grundrisse und Formulare
Vergaberichtlinie Mietwohnungen.pdf
478 KB
download
Bewerberbogen Zweizimmerwohnung.pdf
134 KB
download
Eidesstattliche Versicherung.pdf
123 KB
download
Grundriss.pdf
271 KB
download
Hinweis: Bitte reichen Sie Ihren Antrag auf Erteilung eines Wohnberechtigungsscheines bei Ihrer Wohnsitzgemeinde ein.
Wohnberechtigungsschein Broschüre:

